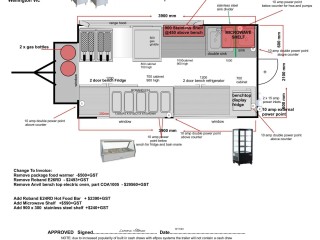
This is an amazing Business Model. $100 a week rent. Open Very short hours, being 24 hours a week ! ( Thur, Fri, Sat, Sun ) And also a great lifestyle business. Opportunity to open ANY hours that suits the new purchaser. Excellent reputation with great reviews on their website. Search - (Reef and Beef. Mobile Fish n Chips and Hamburgers) While the quality of the food is very high and the menu has a lot of variety, overall it is a very simple business model to learn. This is an extremely well equipped Food Van with fryers, grill, Bain Marie, fridges, a very effective exhaust canopy, grease trap and much more. Connected to gas, electricity and water mains. For customers who want to stop and sit, there is an area with tables and chairs under a large, fixed canopy. And excellent parking facilities for customers. The location is prominent on the Main Highway coming into Stratford. And a SUPER CHEAP rent of approx $100 a week. Excellent clientele, being both the locals and tourists taking Princes Highway with hundreds of cars passing all day and all week. A continuous flow !! To earn this income, with little risk with the cheap rent, is a far better business model than having a retail food shop with ALL of the overheads and headaches that come with them. It currently gives the Vendor a great source of income, with time to enjoy day to day activities. For more information Quote BSV 0985 and call Michael NOW on 0400 645 133. Or submit an Enquiry.
This business has been added to your save list now.
Confidentiality Agreement
Do you have an account with us already? If so please login first Login Now.
To receive details on the selected business please complete the Confidentiality Agreement below and your broker will be in touch with you shortly. Note: all information marked with * is required. A username and password will be emailed for you to access our website or you can create your own profile first.
Please complete this form in FULL. Our vendors request all this information to be completed in full so that we may ascertain your ability to proceed to settlement without complication.